Фасадная система Альт-фасад 04 под Металлокассеты

  • Описание системы
  • Документация к системе
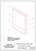
  • Фотографии + чертежи + узлы
  • Комплектующие
Простота монтажа, привлекательный внешний вид, широкий выбор цветовых решений - вот неполный список основных преимуществ металлических кассет, которые сделали их такими популярными как в частном, так и промышленном строительстве.

При монтаже данного материала мы предлагаем использовать системы крепления Альт-фасад 04, которые включают в себя вертикальную, горизонтально-вертикальную и систему крепления в межэтажные перекрытия. Это продуманные, всесторонне проработанные, универсальные навесные системы, позволяющие с минимальными затратами выполнить облицовку фасада.

Характеристики системы

  • Класс пожарной опасности системы К0
  • Группа горючести облицовочного материала Г1
  • Срок службы более 50 лет

3406e292feb2a8fa9d728d3192ab8ba4
3406e292feb2a8fa9d728d3192ab8ba4
5f6075407ac1beac93e3067309a3e399
5f6075407ac1beac93e3067309a3e399
532bcc3c1024695cd573f0bf2875b169
532bcc3c1024695cd573f0bf2875b169
c200a95bca894b14b74093fb626b8f93
c200a95bca894b14b74093fb626b8f93
6cd7fab561ca575af0e333e332ef28fa
6cd7fab561ca575af0e333e332ef28fa
68181fc225ebab8c17eba3e599d9f91c
68181fc225ebab8c17eba3e599d9f91c
c61e7bc55e17b99f07fc160a4b32903f
c61e7bc55e17b99f07fc160a4b32903f
c04c98e4ec5e348b07b9286663324fcc
c04c98e4ec5e348b07b9286663324fcc
5c3408bd1ab2d75c362e35ff81ea1415
5c3408bd1ab2d75c362e35ff81ea1415
8bf7a404842b59a189eaa63e94f42c6e
8bf7a404842b59a189eaa63e94f42c6e
5e258e2651ba6eeed617427bdf8592f6
5e258e2651ba6eeed617427bdf8592f6
7c599cd52366f2c37077b68cbef4709b
7c599cd52366f2c37077b68cbef4709b
1fb08b071d8ab17d7e7e6ee9733f2b34
1fb08b071d8ab17d7e7e6ee9733f2b34
43ca25c899e25f0d83b273246cd5c85d
43ca25c899e25f0d83b273246cd5c85d
a216ac408a14c1792c04295a3493773c
a216ac408a14c1792c04295a3493773c
2424e276890b5d5283b7ee1a1816fce3
2424e276890b5d5283b7ee1a1816fce3
78e282ef86f07b28f6cf0c72e295f2ee
78e282ef86f07b28f6cf0c72e295f2ee
52860e72fc8486ef584caedcab34c223
52860e72fc8486ef584caedcab34c223
fb2a05225eb572451bf8e5ae5d6ff274
fb2a05225eb572451bf8e5ae5d6ff274
Для вас предусмотрена скидка от базовых цен!
Отправить заявку

Другие фасадные системы под
Металлокассеты

Заказать расчёт сметы. БЕСПЛАТНО!