Фасадная система Силма-М под Металлокассеты

  • Описание системы
  • Документация к системе
  • Фотографии + чертежи + узлы
  • Комплектующие
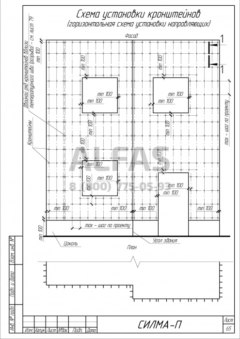
Система "СИЛМА-М" предназначена для обустройства фасада металлокасетами видимого типа крепления вновь строящихся и реконструируемых зданий и обьектов а также сооружений различного назначения и, при необходимости, их наружного утепления.

Конструкции могут применяться в зданиях и сооружениях всех степеней огнестойкости и классов функциональной и конструктивной пожарной опасности.

712e92eefbbc79ea5a23f8e5b13a1ffe
712e92eefbbc79ea5a23f8e5b13a1ffe
e494ca516be39b1a4e6a0a74a5e8f21b
e494ca516be39b1a4e6a0a74a5e8f21b
8f47e33094eb09393f5d49aeeb06107a
8f47e33094eb09393f5d49aeeb06107a
f2dee7c4ad7e18cf2f5470b83384b42a
f2dee7c4ad7e18cf2f5470b83384b42a
121625cf1b950a0d6511fb835ee70030
121625cf1b950a0d6511fb835ee70030
0fc20b15180fd9ed32600e432aa9519b
0fc20b15180fd9ed32600e432aa9519b
Для вас предусмотрена скидка от базовых цен!
Отправить заявку

Другие фасадные системы под
Металлокассеты

Заказать расчёт сметы. БЕСПЛАТНО!