
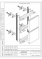
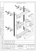
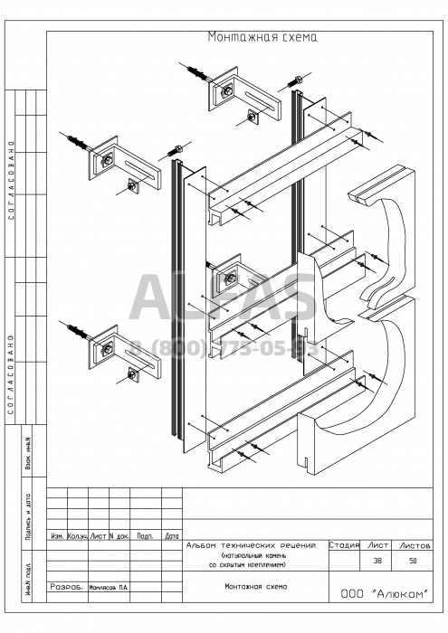
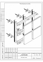
Alucom NG – алюминиевая подоблицовочная конструкция, выполненная из сплава А 6063 Т6, обеспечиваемый диапазон регулировки относа от стены от 130 мм до 270мм. В качестве облицовки используются плиты из натурального камня толщиной 30мм. Крепление осуществляется скрытым способом при помощи кляммеров (горизонтальных направляющих). В плитах натурального камня фрезеруются специальные пазы в которые входят лапки горизонтальных направляющих, надежно фиксируя плиту.
Вертикальные и горизонтальные направляющие в системы соединяются при помощи заклепок, что обеспечивает надежность соединений и высокую стойкость конструкций к динамическим нагрузкам.
Особенность системы:
-
Надежность крепления всей конструкции за счет применения болтового соединения кронштейна и направляющей.
-
Элементы крепления не выступают за плоскость облицовывающей плиты натурального камня.
-
Высокая надежность системы. Плиты натурального камня фиксируются по всей длине пазов в верхнем и нижнем торцах плит.
-
Быстрота сборки, обусловленная оригинальной конструкцией системы.
-
Эстетическая привлекательность, шов между плитами натурального камня - 3 мм.