
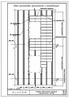
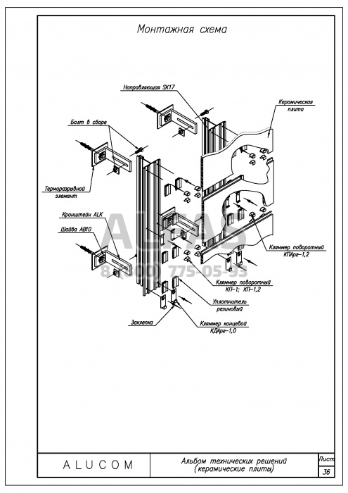
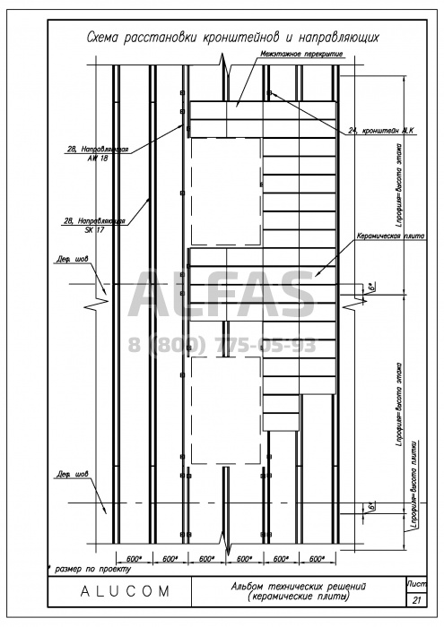
Alucom KN — алюминиевая подоблицовочная конструкция, выполненная из сплава А6060Т66.
Диапазон регулировки относа от стены от 40 мм до 320мм.
В качестве облицовки используются плиты из керамики толщиной от 18 до 40 мм.
Крепление осуществляется открытым способом при помощи поворотного кляммера, изготовленного из нержавеющей стали 12Х18Н10Т.
Особенности системы:
-
Надежность крепления всей конструкции за счет применения болтового соединения кронштейна и направляющей.
-
Быстрота сборки, обусловленная оригинальной конструкцией поворотного кляммера.
-
Концевые и поворотные кляммера устанавливаются в пазы вертикальной направляющей, что облегчает процесс монтажа и предотвращает перекос плиток.
-
Эстетическая привлекательность, характеризующаяся возможностью уменьшить швы между плитками до 4-6 мм.